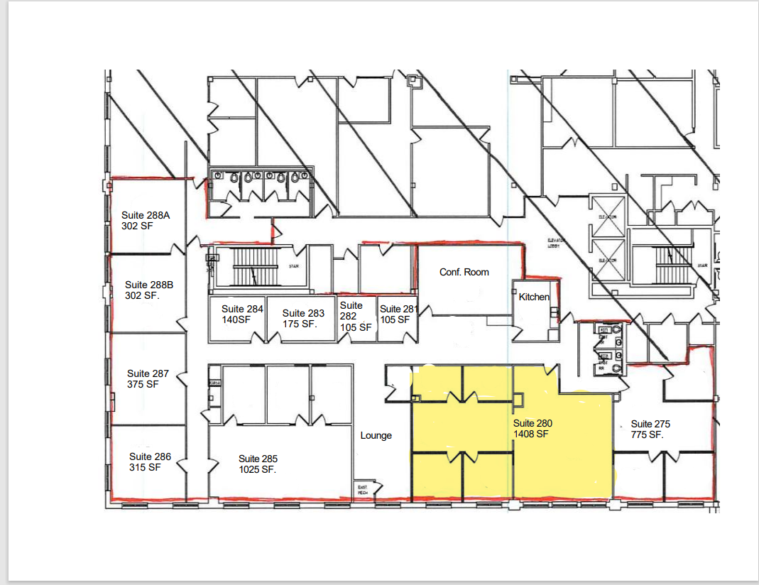
One E. Main, Suite 280

PROPERTY DETAILS
Square Footage: 1,408 sq ft
Monthly Rent: $3,500
Coming Soon!! The Executive Suites at One Main. The ideal plug and play office in the ideal location. This large office with windows in the main reception area, is pre-leasing now. 4 dedicated offices with large reception area. This office is located in the heart of downtown Champaign, and comes comes complete with the following services: Shared Wi-Fi, Utilities (phone, wired internet, electric), Trash/recycling, on site maintenance and management, 24/7 building access for tenants, restricted after hours access for general public, shared copier access, and shared conference room access. Contact us today for more information



