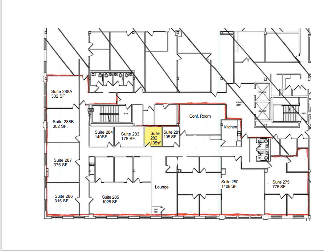
One E. Main, Suite 282

PROPERTY DETAILS
Square Footage: 105 sq ft
Monthly Rent: $350
Coming Soon!! The Executive Suites at One Main. The ideal plug and play office in the ideal location. This single office is perfect for those looking for a small dedicated workspace without the high overhead. As an added bonus this office is soundproof, perfect if you have confidential calls to make, want to record a podcast, or need a quiet spot for recording. This office is located in the heart of downtown Champaign, and comes comes complete with the following services: Shared Wi-Fi, Utilities (phone, wired internet, electric), Trash/recycling, on site maintenance and management, 24/7 building access for tenants, restricted after hours access for general public, shared copier access, and shared conference room access. Contact us today for more information



